
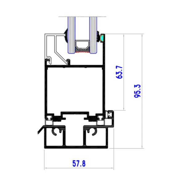
MAGS Sliding Folding MSFD50
MAGS Sliding folding MSFD50 is high insulation and comfort with maximal transparency and aesthetics, allowing for large and heavy glass spans to really open up the space while ensuring optimal insulation. This high performance system offers different opening types, both inward and outward to meet all possible requirements. Apart from the standard folding element, this can feature a main door principle, in which the first leaf is used as an entrance door without affecting the other elements. MAGS Sliding Folding MSFD50 is available with zero threshold solutions, from high performance to low and even flush thresholds, in order to perfectly match all comfort requirements. Additionally, the concept can be perfectly combined with the concept system for windows and doors.
Performance
Comfort
Safety
* Note: Performances and properties may be different depending on the profile combinations